Beschrijving
** ENGLISH VERSION BELOW**
Gelegen in de levendige wijk Kortenbos, op steenworp afstand van het Haagse centrum, bevindt zich dit karakteristieke hoekappartement aan de Oude Boomgaardstraat 71. Deze woning biedt een unieke kans voor wie op zoek is naar een appartement met potentie, in een omgeving waar alles binnen handbereik is.
Locatie
De Oude Boomgaardstraat is een rustige straat in het hart van Den Haag, ideaal gelegen nabij winkels, restaurants, openbaar vervoer en culturele voorzieningen. Met het bruisende stadscentrum op loopafstand geniet je van het gemak van stedelijk wonen, gecombineerd met de charme van een rustige woonomgeving.
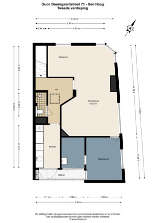
Indeling
Via het open portiek leidt een trap naar het bordes op de eerste verdieping, dat toegang geeft tot de voordeur van het appartement op de tweede verdieping. De entree komt uit in de hal met meterkast en een trap naar de woonverdieping. Vanaf daar betreed je de lichte en zeer ruime woon-/eetkamer met toegang tot de slaapkamer aan de achterzijde.
De slaapkamer biedt toegang tot het balkon via een enkele deur. Daarnaast grenst er een zijkamer aan de slaapkamer met een schuifpui naar het balkon. Deze zijkamer is ideaal als riante walk-in closet en beschikt over een wastafelmeubel, waardoor hier eventueel een extra badkamer gerealiseerd kan worden. Er bestaat bovendien de mogelijkheid om in de woning nog een extra slaapkamer te creëren. Kortom: deze woning biedt enorm veel mogelijkheden!
De keuken is voorzien van onder andere een afzuigkap, 4-pits fornuis, spoelbak, losstaande koelkast en vaatwasser. Ook bevinden zich hier de wasmachineaansluiting en de opstelling van de cv-ketel. De badkamer is uitgerust met een inloopdouche en een modern zwevend toilet. De woning is volledig voorzien van dubbel glas in aluminium kozijnen.
Algemene informatie appartement
- Bouwjaar: 1935
- Eigen grond
- Woonoppervlakte: ca. 77,5 m²
- Balkon met balkonkast: ca. 3,5 m²
- Inhoud van het appartement: ca. 267,4 m³
Energie en duurzaamheid
- Energielabel: G
- Aluminium kozijnen met dubbel glas
- Verwarming en warm water via CV-ketel Remeha Avanta 28C (bouwjaar: 2020)
VvE & onderhoud
- Professionele (externe) bestuurder
- Actieve VvE, maandelijkse bijdrage: € 106,19
- Reservefonds: € 5.686,57 (peildatum 31-12-2024)
- 1/3e aandeel in de gemeenschap
- Collectieve opstalverzekering
- Meerjarenonderhoudsplan aanwezig
- Dak vernieuwd in 2023
Meer informatie over deze woning?
Bezoek oudeboomgaardstraat71.nl of neem contact op voor meer informatie of een bezichtiging. Dit is een unieke kans om een stukje Haagse geschiedenis te combineren met modern comfort.
Let op: Vanwege het bouwjaar van de woning zal een ouderdoms- en materialenclausule worden opgenomen.
Interesse in dit huis?
Schakel direct uw eigen aankoopmakelaar in. Uw aankoopmakelaar behartigt uw belangen en bespaart u tijd, geld en zorgen.
Deze informatie is met de nodige zorgvuldigheid samengesteld. Wij aanvaarden echter geen aansprakelijkheid voor eventuele onvolledigheden, onjuistheden of de gevolgen daarvan.
**ENGLISH VERSION**
Oude Boomgaardstraat 71, The Hague – Charming Apartment in the Vibrant City Centre
Located in the lively Kortenbos district, just steps away from the bustling heart of The Hague, you'll find this characterful corner apartment at Oude Boomgaardstraat 71. This home presents a unique opportunity for anyone seeking a property with potential, situated in a neighbourhood where everything is within easy reach.
Location
Oude Boomgaardstraat is a quiet street in the heart of The Hague, ideally located close to shops, restaurants, public transport and cultural amenities. With the vibrant city centre just a short walk away, you’ll enjoy the convenience of urban living combined with the charm of a peaceful residential environment.
Layout
Access to the apartment is via an open porch and staircase to the landing on the first floor, which leads to the front door on the second floor. Upon entry, a hallway with a meter cupboard and a staircase leads up to the living quarters.
From the hallway, you enter the bright and spacious living and dining room with access to the rear bedroom. This bedroom offers access to the rear-facing balcony through a single door. An adjoining side room, accessible via a sliding door, could serve as a generous walk-in closet and includes a washbasin unit—making it possible to convert it into an additional bathroom. There is also potential to create an extra bedroom in the apartment. In short, the property offers plenty of possibilities!
The kitchen is equipped with an extractor hood, a 4-burner stove, a sink, freestanding refrigerator and dishwasher. The washing machine and central heating system are also located in the kitchen. The bathroom features a walk-in shower and a modern wall-hung toilet. The property is fitted with double glazing in aluminium window frames.
General Information
- Year of construction: 1935
- Freehold (no leasehold)
- Living area: approx. 77.5 m²
- Balcony with storage cabinet: approx. 3.5 m²
- Volume: approx. 267.4 m³
Energy & Sustainability
- Energy label: G
- Aluminium window frames with double glazing
- Heating and hot water via Remeha Avanta 28C central heating boiler (year: 2020)
- Homeowners’ Association (VvE) & Maintenance
- Professionally managed by an external party
- Active association, monthly contribution: €106.19
- Reserve fund: €5,686.57 (reference date: 31-12-2024)
- 1/3rd share in the community
- Collective building insurance
- Multi-year maintenance plan available
- Roof has been renewed in 2023
More Information
Visit oudeboomgaardstraat71.nl or contact us for more information or to schedule a viewing. This is a rare opportunity to blend a piece of The Hague's history with modern-day comfort.
Please note: Due to the age of the property, an age and materials clause will be included in the purchase agreement.
Interested in this property?
Hire your own purchasing agent right away. A buying agent represents your interests and can save you time, money and worry.
The above information has been compiled with the utmost care. However, we accept no liability for any inaccuracies, incompleteness or the consequences thereof.