Beschrijving
English: See the English version at the bottom of this page.
*** Open huis op vrijdag 3 april van 15.00 tot 16.30 uur ***
Wil je de woning bezichtigen tijdens het open huis? Meld je dan van tevoren aan via de knop ‘Vraag een bezichtiging aan’ in deze Funda-advertentie. Of via onze website 'Plan een bezichtiging' . Let op: Telefonisch maken wij geen afspraken.
Een plek om thuis te komen
Sommige woningen hebben dat ongrijpbare gevoel van thuiskomen, een plek waar sfeer, comfort en functionaliteit samenkomen. Hoenderloostraat 94 in Den Haag is zo’n woning. Deze karaktervolle woning uit 1929 is in 2015 volledig en grondig gerenoveerd en daarmee getransformeerd tot een turn-key woning waar je direct kunt intrekken en wonen zonder te klussen. Hier geniet je van modern wooncomfort, gecombineerd met de charme van een bestaande bouw.
Wonen in Rustenburg en Oostbroek
De woning is gelegen in de wijk Rustenburg en Oostbroek, een karaktervolle en stedelijke woonomgeving in Den Haag. De wijk kent een rijke historie en is grotendeels opgebouwd in de jaren ’20 en ’30, wat terug te zien is in de uitstraling van de bebouwing.
Rustenburg en Oostbroek is een levendige en veelzijdige wijk met een diverse mix van bewoners, waaronder veel jonge volwassenen en gezinnen. De wijk staat bekend om haar praktische ligging, goede voorzieningen en het feit dat je hier comfortabel woont met de dynamiek van de stad binnen handbereik. Daarnaast grenst de wijk aan het groene en uitgestrekte Zuiderpark, waar je kunt wandelen, sporten of ontspannen in een natuurlijke omgeving.
Voorzieningen binnen handbereik
In de directe omgeving van de woning bevinden zich diverse voorzieningen zoals supermarkten, winkels, scholen en kinderopvang. Voor een uitgebreider aanbod aan winkels en speciaalzaken kun je terecht in de nabijgelegen winkelstraten zoals de Dierenselaan en Apeldoornselaan.
Ook de bekende Haagse Markt ligt in de buurt, waar je terecht kunt voor een breed en divers aanbod aan verse producten en internationale producten. Daarnaast zijn er diverse horecagelegenheden, cafés en eetgelegenheden in de omgeving, waardoor er altijd iets te ontdekken valt.
Bereikbaarheid
De woning is uitstekend bereikbaar met zowel het openbaar vervoer als de auto. Diverse tram- en busverbindingen zorgen ervoor dat je snel en eenvoudig door Den Haag reist. Het centrum van Den Haag en het Centraal Station zijn binnen korte tijd bereikbaar.
Met de auto ben je eveneens goed aangesloten op de uitvalswegen richting onder andere de A4, A12 en A13, waardoor steden als Rotterdam, Leiden en Amsterdam goed bereikbaar zijn.
Natuur en ontspanning
Voor ontspanning en recreatie is de ligging ideaal. Het nabijgelegen Zuiderpark biedt volop mogelijkheden voor wandelen, sporten en recreëren. Daarnaast zijn ook de stranden van Den Haag goed bereikbaar, waardoor je eenvoudig kunt genieten van zee, strand en duinen.
Algemene woninginformatie
- Bouwjaar: 1929
- Eigen grond
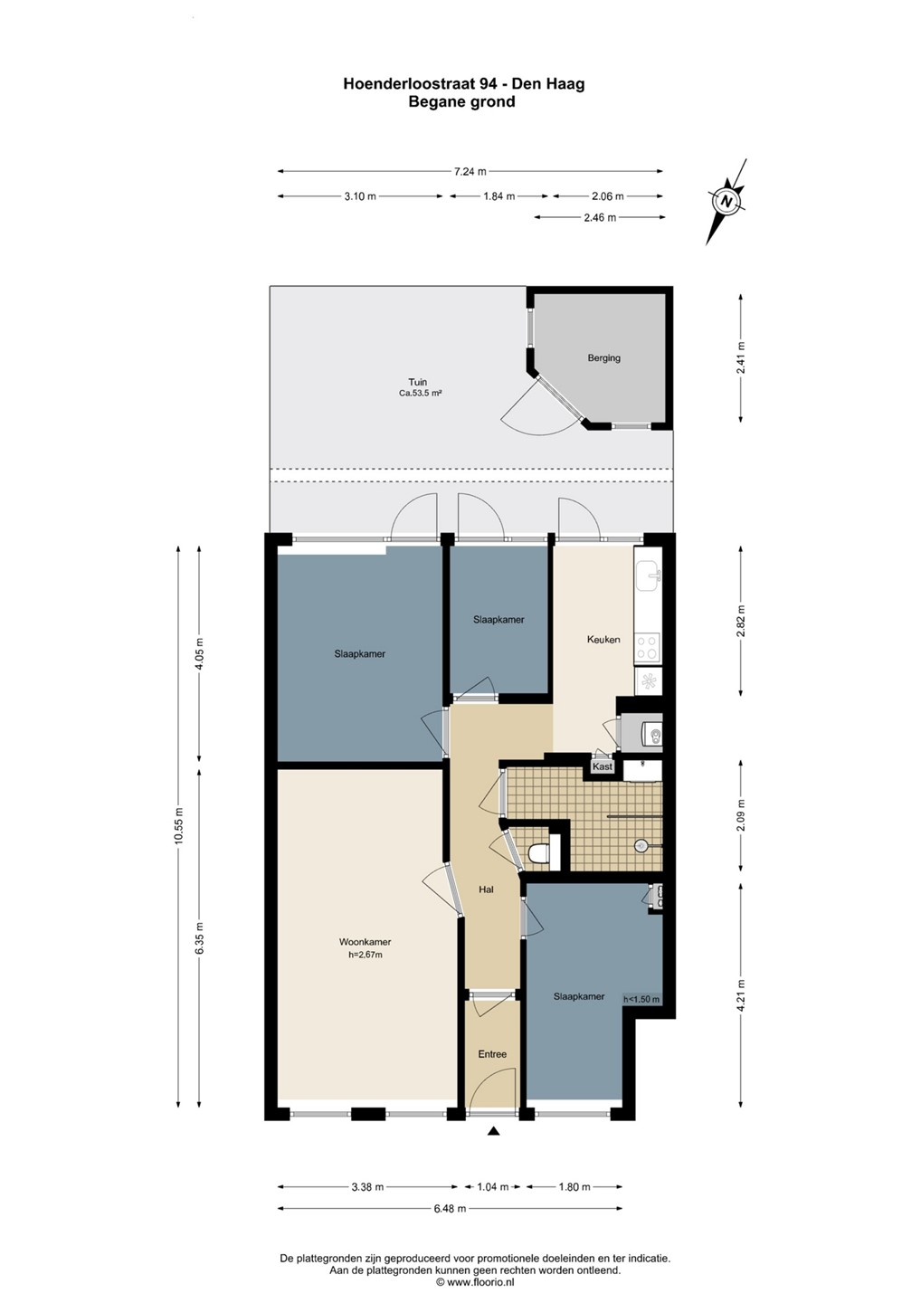
- Woonoppervlakte ca. 75 m²
- Ruime achtertuin ca. 53,5 m2
- Houtenberging in de achtertuin ca. 5m2
- Volledig en grondig gerenoveerde Turn-key woning uit 2015
Energie en duurzaamheid
- Cv-installatie (Intergas Kombi Kompakt HRE 28/24 uit 2015)
- Kunststof kozijnen met dubbel glas
- Vloerisolatie met 16 cm steenwol
De woning is in 2015 volledig en grondig gerenoveerd en voorzien van diverse verbeteringen op het gebied van comfort en isolatie. Zo beschikt de woning over kunststof kozijnen met dubbel glas, wat bijdraagt aan een goede isolatiewaarde en een prettig binnenklimaat.
Daarnaast is de woning voorzien van vloerisolatie met 16 cm steenwol, wat zorgt voor extra comfort en minder warmteverlies. De cv-installatie (Intergas Kombi Kompakt HRE 28/24 uit 2015) zorgt voor efficiënte verwarming en warm water, wat aansluit bij het moderne en energiezuinige wooncomfort.
VvE & onderhoud
De woning maakt onderdeel uit van een actieve en financieel gezonde Vereniging van Eigenaren.
- VvE bijdrage: € 120,- per maand
- Collectieve opstalverzekering via ASR
- Reservefonds VvE: ca. € 8.930,29 (peildatum 2025)
- Er wordt conform de norm van 0,5% van de herbouwwaarde gespaard
- 1/3 aandeel in de gemeenschap
Kortom
Hoenderloostraat 94 is een karaktervolle en instapklare woning op een centrale locatie in Den Haag. Dankzij de grondige renovatie in 2015 biedt de woning modern wooncomfort, terwijl de ligging in de geliefde wijk Rustenburg en Oostbroek zorgt voor een fijne balans tussen rust, bereikbaarheid en voorzieningen.
Een ideale woning voor wie op zoek is naar een turn-key thuis met karakter, comfort en een uitstekende ligging.
Interesse in deze woning?
Neem contact op voor meer informatie of een bezichtiging en ontdek zelf de mogelijkheden die deze woning te bieden heeft, of bezoek de eigen woningwebsite op Hoenderloostraat94.nl
Let op:
Vanwege het bouwjaar van de woning zal een ouderdoms- en materialenclausule worden opgenomen.
*** Open house on Friday, April 3rd from 3:00 PM to 4:30 PM ***
Would you like to view the property during the open house? Please register in advance via the ‘Request a viewing’ button in this Funda listing, or via our website ‘Schedule a viewing’. Please note: we do not make appointments by phone.
A place to come home to
Some homes have that indescribable feeling of coming home—a place where atmosphere, comfort, and functionality come together. Hoenderloostraat 94 in The Hague is such a home. This characterful property from 1929 was fully and thoroughly renovated in 2015 and has been transformed into a turn-key home, ready for immediate occupancy without any need for renovation. Here you enjoy modern living comfort combined with the charm of a period property.
Living in Rustenburg and Oostbroek
The property is located in the Rustenburg and Oostbroek neighborhood, a characteristic and urban residential area in The Hague. The neighborhood has a rich history and was largely developed in the 1920s and 1930s, which is reflected in the architectural style of the buildings.
Rustenburg and Oostbroek is a lively and diverse neighborhood with a mix of residents, including many young professionals and families. The area is known for its practical location, good amenities, and the fact that you live here comfortably with the dynamics of the city within easy reach. The neighborhood also borders the green and expansive Zuiderpark, where you can walk, exercise, or relax in a natural environment.
Amenities within easy reach
In the immediate vicinity of the property, you will find a wide range of amenities such as supermarkets, shops, schools, and childcare facilities. For a broader selection of shops and specialty stores, you can visit nearby shopping streets such as Dierenselaan and Apeldoornselaan.
The well-known Haagse Markt is also nearby, offering a wide and diverse selection of fresh and international products. In addition, there are various cafés, restaurants, and dining options in the area, ensuring there is always something to discover.
Accessibility
The property is very well connected by both public transport and car. Multiple tram and bus lines ensure quick and easy travel throughout The Hague. The city center and Central Station are within a short distance.
By car, you have excellent access to major highways such as the A4, A12, and A13, providing easy connections to cities like Rotterdam, Leiden, and Amsterdam.
Nature and leisure
For relaxation and recreation, the location is ideal. The nearby Zuiderpark offers plenty of opportunities for walking, sports, and outdoor activities. The beaches of The Hague are also easily accessible, allowing you to enjoy the sea, sand, and dunes within a short distance.
General property information
Year built: 1929
Freehold property
Living area: approx. 75 m²
Spacious backyard: approx. 53.5 m²
Wooden storage shed in the backyard: approx. 5 m²
Fully and thoroughly renovated turn-key home (2015)
Energy and sustainability
Central heating system (Intergas Kombi Kompakt HRE 28/24 from 2015)
Plastic window frames with double glazing
Floor insulation with 16 cm mineral wool
The property was fully and thoroughly renovated in 2015 and equipped with various improvements in terms of comfort and insulation. It features plastic window frames with double glazing, contributing to a good level of insulation and a comfortable indoor climate.
In addition, the property has floor insulation with 16 cm mineral wool, providing extra comfort and reduced heat loss. The central heating system (Intergas Kombi Kompakt HRE 28/24 from 2015) ensures efficient heating and hot water, aligning with modern and energy-efficient living standards.
HOA (Owners’ Association) & maintenance
The property is part of an active and financially healthy Owners’ Association (HOA).
HOA contribution: €120 per month
Collective building insurance via ASR
Reserve fund: approx. € 8,930.29 (as of 2025)
Savings in accordance with the 0.5% of rebuilding value guideline
1/3 ownership share in the community
In short
Hoenderloostraat 94 is a characterful and move-in-ready home in a central location in The Hague. Thanks to the thorough renovation in 2015, the property offers modern living comfort, while its location in the popular Rustenburg and Oostbroek neighborhood provides a perfect balance between tranquility, accessibility, and amenities.
An ideal home for those looking for a turn-key property with character, comfort, and an excellent location.
Interested in this property?
Please contact us for more information or to schedule a viewing and discover the possibilities this property has to offer, or visit the property website at Hoenderloostraat94.nl
Please note:
Due to the age of the property, an age and materials clause will be included.